Courthézon, Vente maison 174 m2
Courthézon
Maison
8 pièces 174 m2
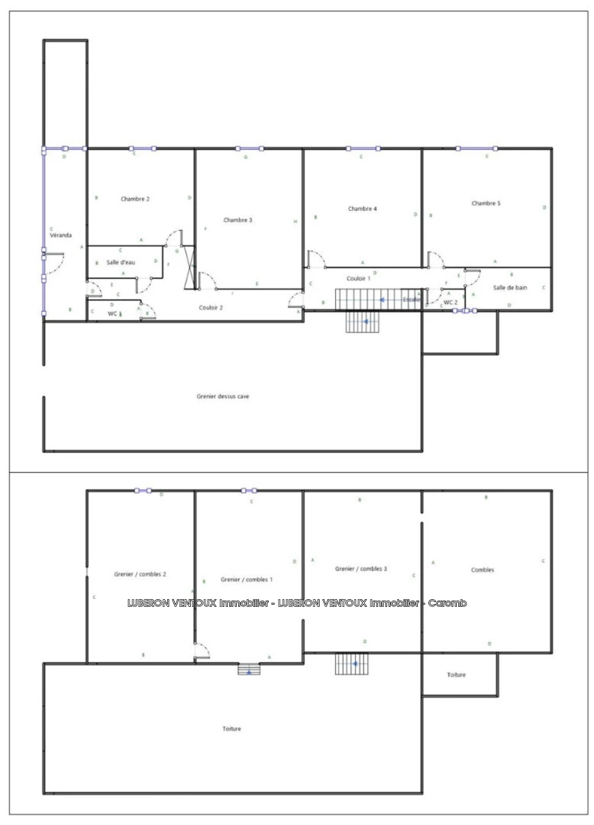
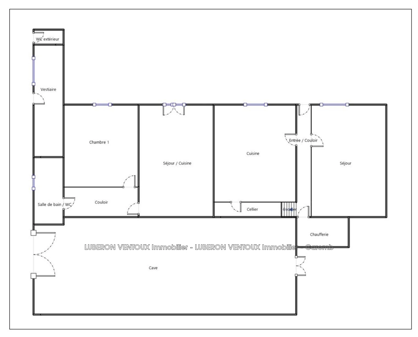
Mas provençal à Courthézon. Pour les amoureux de vieilles pierres, mas mitoyen au charme intact, posé sur une jolie parcelle d'environ 1000 m², il vous attend pour une belle restauration. Les volumes anciens offrent un terrain de jeu idéal pour façonner un projet sur mesure, dans le respect des traditions provençales. Un bien de caractère, simple, authentique et riche en potentiel, pour amateurs de pierres anciennes et de belles réhabilitations. Pour visiter, il suffit de nous appeler au 04.90.62.48.53. A bientôt.
Caractéristiques
- Surface terrain 952 m²
- Année construction 1900
- État extérieur travaux à prévoir
Prestations
- Jardin
- Etat extérieur: Mauvais
- Fenêtre: Bois simple vitrage
- Chambre en RDC
- Séjour double
- Clair
- Type d'Assainissement: Fosse à refaire
- Grenier
- Exposition Séjour: Sud
- Neuf / Ancien: Ancien
Informations légales
- 400 000 € honoraires inclus
honoraires inclus aucune procédure en cours, les informations sur les risques auxquels ce bien est exposé sont disponibles sur georisques.gouv.fr, barème de prix non renseigné
Efficacité énergétique
Classe énergie (dpe)
E
-
Emission de gaz à effet de serre (ges)
E
En savoir plus

Partager cette page